Finn din leilighet
Området
Leverandører
Galleri
Nyheter
Dokument
Send meg prospekt
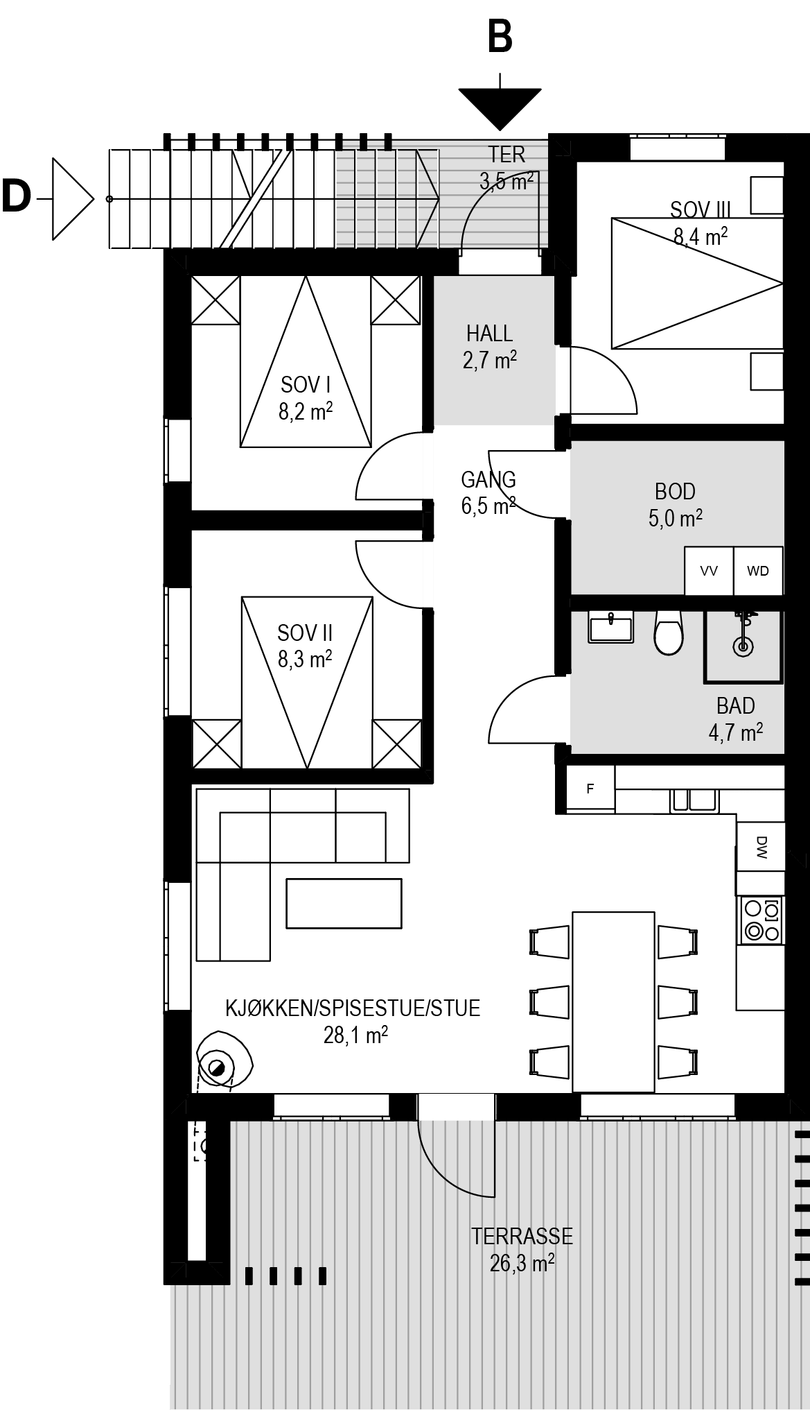
Langenesvegen 36B
3-roms leilighet på bakkeplan, med stor uteplass.
Send meg prospekt
Kjøp
Status
Ledig
Leil. nr.
36B
Pris
3 890 000
Soverom
2
BRA-i m²
67
Uteplass TBA m²
30
Send meg prospekt
Registrer deg her og motta digitalt prospekt og relevant informasjon om prosjektet.
Fyll inn navn
Fyll inn telefonnummer
Fyll inn e-post
Jeg ønsker å bli kontaktet i samsvar med denne
personvernerklæringen
Send
Powered by Plyo
Tilbake til Langenesvegen 36ABCDEF