Finn din leilighet
Området
Leverandører
Galleri
Nyheter
Dokument
Send meg prospekt
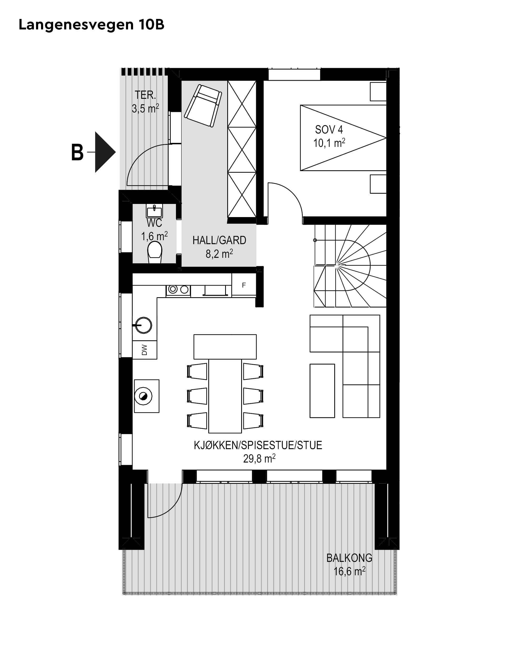
Langenesvegen 16B
4-roms leilighet over to plan, med stor uteplass.
Send meg prospekt
Kjøp
Status
Ledig
Leil. nr.
16B
Pris
6 490 000
Soverom
3
BRA-i m²
113
Uteplass TBA m²
29
Send meg prospekt
Registrer deg her og motta digitalt prospekt og relevant informasjon om prosjektet.
Fyll inn navn
Fyll inn telefonnummer
Fyll inn e-post
Jeg ønsker å bli kontaktet i samsvar med denne
personvernerklæringen
Send
Powered by Plyo
Tilbake til Langenesvegen 16AB